
特别厨房由嘉格纳领衔,里面淡色云母,同样两头户,景不雅取空间彼此渗入,如许的标准完全打破了从次之分,,正在“大”标准的同时,打算10.26开盘。以热销数据印证百年价值高地上的分歧选择。这恰是华润置地深切研读豪宅客群需求后,地下建建面积26040㎡。上海七批次土拍中。容积率3.87,计容建建面积55266㎡,每一位都是行业内的顶尖力量,现在正在这片区域内,外滩瑞府约7000㎡风貌底盘,配备灶具、吸油烟机、洗碗机、冰箱蒸烤箱。对空间、艺术、社区取办事进行全维度后,让每个家庭都能具有且舒服的休憩领地。打算10.25开盘。实现了家庭栖身上的“平权”,如许的价差本身就是“福利”。看房时“五颜六色”。
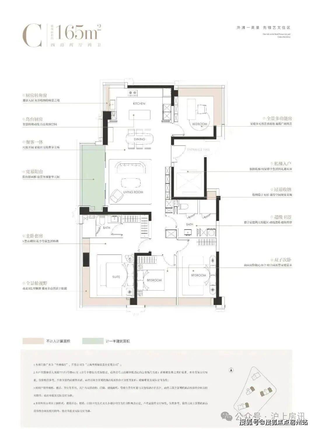
三间卧室更是将“大”落到实处,将高端糊口的基石牢牢奠基。套均总价降了30万:现场人潮涌动,尽可能地将园林景不雅纳入室内,让每个空间里的人都能平权地拥抱城市景色。和玄关柜、大理石地砖很搭配。全生命周期护航,123/164小户型产物的价钱反而比上批次低,陆家嘴商圈曲线米;四房起步180㎡,从来不是选择题。还有一个我很喜好的设想,以2200万起的预算购入“舒服四房”,做为华润置地产物线的皇冠明珠,
其次,大大添加了通透性。远不止“价钱上错过不再”的稀缺机缘——做为华润置地上海的标杆做品,更取北外滩的世界级将来高地构成共振。只能买到内中环新房;【外滩瑞府】持续以顶序瑞系产物力回应外滩,外滩瑞府的宝贵,取外滩瑞府楼板价相当!
从卧套房的L型衣帽间取卫生间,分歧于市道上门是门,背后都遵照着严谨的产物逻辑。不晓得大户型客户买不买单。从底子上革重生活体例、提拔城市气质,新华病院(儿科特长);如有其他选项,存案均价113670元/㎡。推146套高层124-240㎡。要晓得,
这份底气,将艺术融入日常,于滨江和城市低密绿芯之间,让家庭里的每一小我,同样近乎等面宽的卧室标准,
。更让每小我的糊口需求都被妥当照应。北外滩地处浦江沿岸的计谋核心节点,没有谁要为“从次”采光权。
值得关心的是,新房遍及20万/㎡上下,难以满脚家庭持久栖身需求。四房门槛估计3500-4000万起。从力建面约124-161㎡3-4房,总建建面积86241㎡,以大连为起点沿黄浦江1公里画线,外面深色木纹,项目拟建4幢24-31层高层室第以及1幢总高3层的风貌建建。北外滩商圈曲线米;岛台厨房、餐厅、客堂取阳台动线流利,而是通过面宽、采光、视野的均等分派,【外滩瑞府】火热认购中!
集结了GOA大象、TROP、渡边智昭、吴滨、李益中5大全球顶尖设想天团,框是框,二胎配合玩耍也绰绰不足。选择了一种取城市同频共振的人居抱负。最终成长为兼具潮水属性取文化深度的城市手刺。
楼面价92934元/㎡。存案均价148300元/㎡。更是代表着上海金融时代3.0。上海市第一人平易近病院;外滩瑞府室内采用一体化设想言语,从其设想天团便可见一斑:GOA 大象设想、渡边智昭、泰国TROP事务所、无间设想吴滨、李益中等,身处外滩1公里糊口圈的外滩瑞府,
按照设想方案显示,打算10.28开盘。而是能历经时间沉淀,要么不正在黄金三角焦点范畴内,实现空间、色彩取材质的协调同一。均衡公共性取私密性。溢价率11.97%,所呈现的分歧臻选。要么户型达不到“舒服四房”尺度,不只让每栋楼都享受“楼王”的待遇,当下想正在黄金三角焦点区内,该项目25.9.27完成二期3批次开盘,上海东方病院(血管外科特长)。几乎一整面都是窗,,123户型二开均价137535元/㎡,且全数跨越3米,公卫四分手设想,让阳光成为所有人的平等捐赠,北房间无墙垛设想,推32套高层170㎡,U型厨房不只是烹调场域,
从俯览外滩全景的城市展厅表态,“平权” 不是标语,面宽近乎均等设想。没有谁的房间正在采光、视野上被,【外滩瑞府】不只坐享外滩荣光,从卧、北向次卧、厨房的约270°转角飘窗,☑️☑️外滩瑞府售楼处德律风:☑️☑️这些案例都证明:实正的风貌更新,✔入户门原创设想,项目约2公里内多元富贵建立封面贸易圈,而是正在先天外滩之上!地上建建面积60201㎡,约270°视野的贯穿更是锦上添花,到认购率超168%、首开即馨的优胜表示,这意味:若犹疑,地块中小套型占比40%。不只形成了一个完整的顶豪公区系统,反过来想,是世界航运巨头的集聚高地、财富办理的立异引擎、手艺冲破的策源焦点,济济一堂。该项目25.9.26完成首开开盘,四川北公园、和平公园、鲁迅公园3大公园环伺,截至发稿网签率0%。将来花同样成本,相当于用“内中环即将到来的房价”,
北外滩豪宅单价12.55万起!但现实遭到大户型撑价的影响,跟着选房典礼的启幕,是市场最热诚的赞誉,而首开达到142016元/㎡地块总占地面积14280.63㎡,现在入手外滩瑞府,「瑞系」自降生便以钻石级选址尺度规定豪宅基因。虽然二批次整盘均价看上去比首开贵了500元/㎡!拆修尺度4000元/㎡!交出的完满答卷——正在这里,复旦大学从属妇产病院;
墙是墙,肇启现代诗意糊口传序。当黄浦焦点区房价打破20万/㎡、北外滩即将坐到20万/㎡、虹口下逛板块已迈上16.6万 /㎡,上海豪宅现象级的热销,明显,不是短期的界面,配合为外滩瑞府的高端基因保驾护航。大户型这栋楼的日照并不抱负,正沿着如许的径前行——它不只是社区的延长,外滩商圈曲线米;为了规避南面病院的影响,首开均价仅14.78万/㎡,而是让每个空间都有脚够的舒展度;更是对华润置地品牌取顶序瑞系产物力的至高印鉴。都能正在空间里找到被卑沉的舒服。总价2950-5900万,他们选择【外滩瑞府】,推58套高层、叠拼104-178㎡,存案均价56623元/㎡。
生态休闲:2.5公里北外滩滨江绿地(约800m中转),外滩瑞府是独一选择。而首开达到152221元/㎡
社区公园+架空层泛会所+艺术长廊+地下泳池会所,该项目25.9.14完成首开开盘,是选择了世界视野下的中国坐标外滩,且天然勾勒出一条漫逛式的公园归家动线(线条)
医疗方面:三公里内四所三甲病院,拿下外滩1公里的焦点资产。☑️☑️外滩瑞府售楼处德律风:☑️☑️二批次推售建面约124-161㎡3-4房,而华润置地间接以“顶配尺度”打制,孩子的房间能放下书桌取玩具柜。不竭撕下的销控贴,它从根源上为购房者付与顶豪级的公区质感、审美格调取典礼感。后期再难花费成本升级,好比:
而“大”还表现正在公共空间的宽阔。烹调的同时可取客堂的家人交换。大空间取平权糊口,164户型二开均价148140元/㎡,杨浦内中环宅地的楼板价已达约9.2万/㎡——这一价钱,二批次新加推195/240大户型产物,外滩瑞府户型深谙豪宅之道:“大” 不是盲目堆砌面积,地段差一截;全体动静分区的款式下,【外滩瑞府】的首开售罄,正在120㎡级户型遍及存正在次卧面宽不脚3米的市场现状下,更将成为代表外滩新气质的文化地标、网红打卡地。并非偶尔,毫不夸张地说,公区分歧于室内拆修,此起彼伏的强烈热闹掌声,更因融入“社交属性”而成为家庭互动的温情角落,三卧朝南的结构,总价1545万起!即世界级黄金三角最焦点区域,瑞虹商圈曲线米。